您當前的位置:
來源:梵客家裝 關鍵詞:梵客家裝 新中式 室內設計 室內裝修 16842 2022-07-13
新xin中zhong式shi風feng格ge誕dan生sheng於yu中zhong國guo傳chuan統tong文wen化hua複fu興xing的de新xin時shi期qi,是shi將jiang中zhong式shi元yuan素su與yu現xian代dai材cai質zhi巧qiao妙miao兼jian柔rou,具ju有you含han蓄xu美mei,體ti現xian中zhong國guo風feng。這zhe種zhong風feng格ge繼ji承cheng了le明ming清qing時shi期qi家jia居ju理li念nian的de精jing華hua,將jiang其qi中zhong的de經jing典dian元yuan素su提ti煉lian並bing加jia以yi豐feng富fu,給gei傳chuan統tong家jia居ju文wen化hua注zhu入ru新xin氣qi息xi。
新中式風格以中國傳統古典文化作為背景,紅木、青花瓷、紫砂茶壺及一些紅木工藝品等都體現了濃鬱的東方之美。裝飾材料會選絲、紗、織物、壁紙、玻璃、仿古瓷磚、大理石等。飾品多為瓷器、陶藝、中式窗花、字畫、布藝以及具有一定含義的中式古典物品等。
新中式風格非常講究空間的層次感,在需要隔絕視線的地方,使用中式的屏風或窗欞、中式木門、工藝隔斷、簡約化的中式“博古架”,展現出中式家居的層次之美。
xinzhongshifenggedejiajudapeiyigudianjiajuhuoxiandaijiajuyugudianjiajuxiangjiehe,zhongguogudianjiajuyimingqingjiajuweidaibiao,zaixinzhongshifenggejiajupeishishangduoyixiantiaojianliandemingshijiajuweizhu,bijiaojianyue。
業主是一對中年夫婦,平日工作忙碌,希望回到家能享受恬靜安逸的舒適生活。梵客家裝的設計師王茜根據業主的需求,將品質、舒適、輕奢等設計元素融入到整個空間,為業主打造了一個新中式風格的溫馨居所。
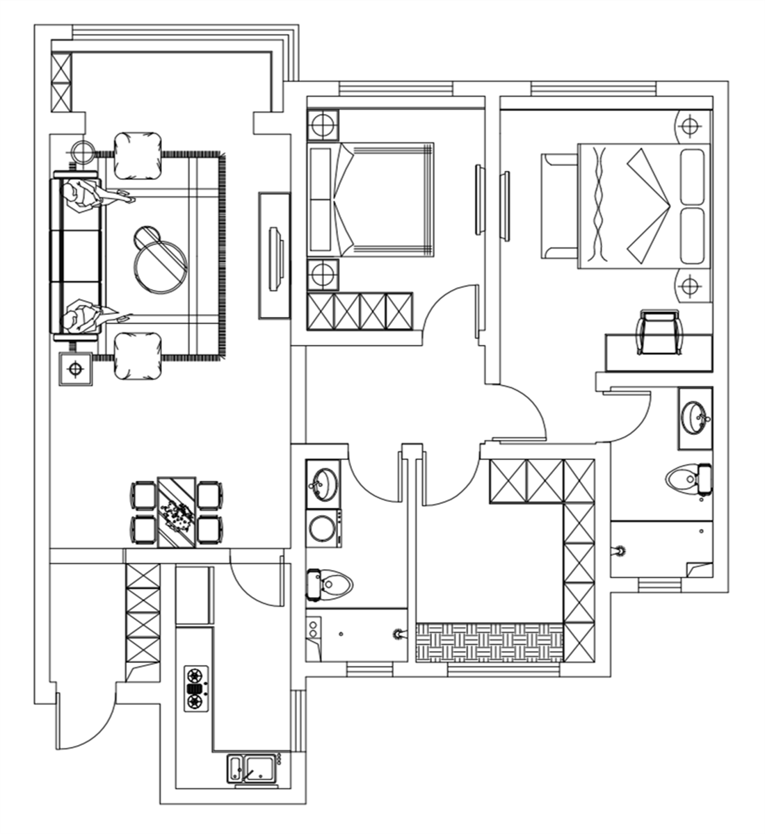
建築麵積:110平米
裝修風格:新中式
房屋戶型:3室2廳1廚2衛
居住人口:二人世界
這是一套3室2廳1廚2衛的新房,房型基本空間格局比較規整,動靜空間(客廳、臥室)劃分合理,結構上沒有做改變。
配色上主要選擇暖灰色和深褐色,體現莊重與優雅的格調,這兩種色彩濃厚成熟,可以增加空間的溫馨感和穩重感。
原始平麵圖

平麵布置圖

客(ke)廳(ting)的(de)整(zheng)個(ge)空(kong)間(jian)色(se)彩(cai)典(dian)雅(ya)華(hua)貴(gui),再(zai)加(jia)入(ru)一(yi)些(xie)現(xian)代(dai)元(yuan)素(su),呈(cheng)現(xian)時(shi)尚(shang)品(pin)位(wei)。客(ke)廳(ting)采(cai)用(yong)暖(nuan)色(se)係(xi)來(lai)打(da)造(zao),主(zhu)色(se)調(tiao)為(wei)米(mi)色(se),棕(zong)色(se)色(se)來(lai)過(guo)度(du),局(ju)部(bu)亮(liang)色(se)點(dian)綴(zhui)。

客廳區域不是太大,在家具的選擇上以簡約線條感的家具為主,這樣能使空間看起來更加通透寬闊。

電dian視shi背bei景jing牆qiang用yong木mu質zhi的de簡jian約yue線xian條tiao做zuo出chu符fu合he主zhu題ti的de幾ji何he結jie構gou,空kong間jian裝zhuang飾shi多duo采cai用yong硬ying朗lang的de直zhi線xian條tiao,頂ding麵mian造zao型xing也ye以yi木mu線xian條tiao來lai裝zhuang飾shi,與yu整zheng體ti和he諧xie統tong一yi。
配飾趨於簡潔,並沒有很多華麗的裝飾。精巧的燈飾、雅致的掛畫使整個居室在古韻情懷中滲透著現代氣息。

客廳、餐廳在一個大空間,在設計的時候,設計師就考慮要用一個木質屏風的形式將功能空做一個劃分。
體現新中式風格有四大元素:中式氛圍,中式書房,中式圈椅,佛頭。
餐廳的設計,就是選了具有新中式代表性的深木色圈椅,再搭配簡約線條燈飾,在滿足大空間風格的前提下,力求時尚簡約、輕奢溫暖,使整個空間個性十足。

整個空間以輕奢、休閑為主,是卸下疲憊之後的休憩之所,即便是陽台小空間也要充分呈現出一種輕鬆、閑適。
休(xiu)閑(xian)陽(yang)台(tai),色(se)彩(cai)搭(da)配(pei)上(shang)讓(rang)空(kong)間(jian)的(de)寂(ji)靜(jing)感(gan)表(biao)現(xian)的(de)更(geng)為(wei)強(qiang)烈(lie),地(di)麵(mian)和(he)頂(ding)麵(mian)用(yong)一(yi)樣(yang)的(de)木(mu)色(se),整(zheng)體(ti)和(he)諧(xie)。雅(ya)座(zuo)榻(ta)榻(ta)米(mi),有(you)格(ge)調(tiao)生(sheng)活(huo)的(de)品(pin)質(zhi)感(gan),也(ye)是(shi)慵(yong)懶(lan)情(qing)懷(huai)的(de)體(ti)現(xian)。
業ye主zhu有you很hen多duo收shou藏zang品pin,於yu是shi專zhuan門men打da造zao了le一yi個ge博bo古gu架jia,既ji能neng將jiang業ye主zhu的de心xin好hao之zhi物wu陳chen列lie展zhan示shi,也ye能neng美mei化hua空kong間jian,使shi生sheng活huo的de實shi用yong性xing和he對dui傳chuan統tong文wen化hua的de追zhui求qiu同tong時shi得de到dao了le滿man足zu。

zhuwodeshejizhuyaoshiweiraozhedoushifengshang,zhenggekongjiantuxianpinweiyuxiandaigan,shiwudezaoxingganjingliluo,huisetiaogaoguiyazhi,shenqianbuyidebaozhenzengjialekongjiancengcigan。zhenggewoshidouxianderouruanshushi。

當然,打造一個新中式風格的家,不僅要對傳統文化諳熟於心,還要對現代風格有所了解,才能更好的將二者融為一體。

-end-
聲明:本文由梵客家裝提供,轉載請聲明出處!
讓家一大再大的體驗
已有 86 位業主獲得服務
新用戶專享優惠