您當前的位置:
來源:梵客家裝 關鍵詞:梵客家裝 開放式 室內設計 室內裝修 16897 2022-07-13
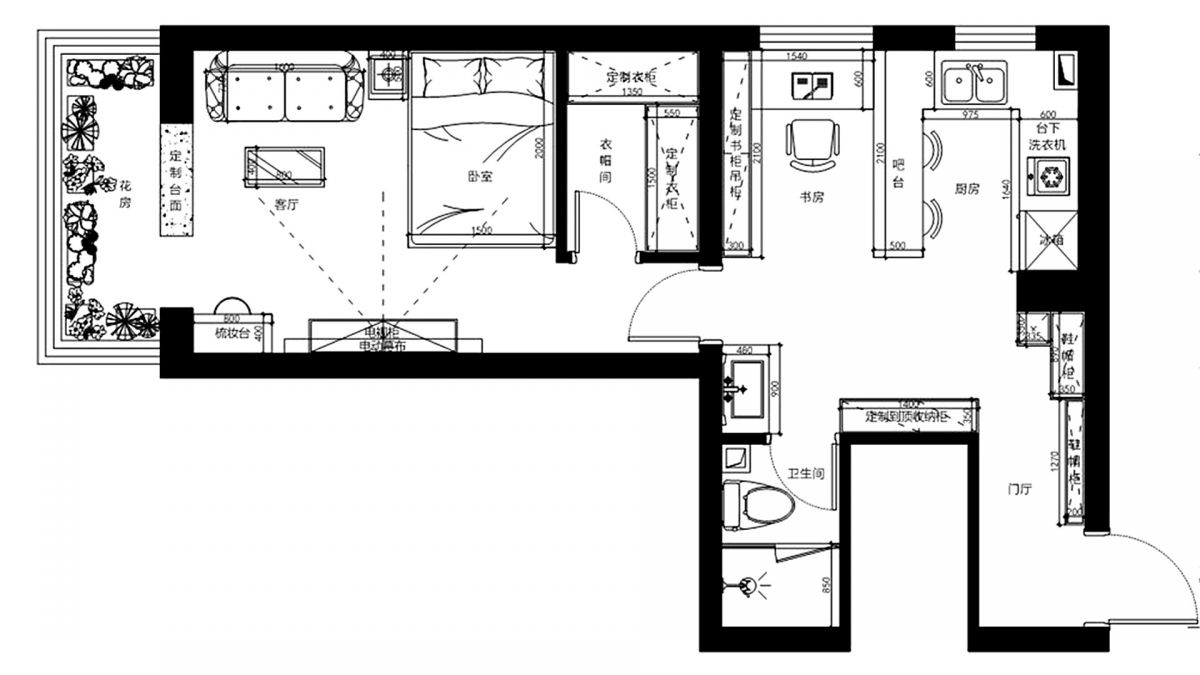
這是一套位於和平街西苑的老房子,原房型為1室1廳1廚1衛,使用麵積55平。老房子的結構布局缺乏合理性,空間利用率也低。


設計師孫鑫老師重新改了格局:在原臥室中間砌牆,增加了一個衣帽間;打通原廚房與餐廳之間的牆,變為開放式餐廚書房多功能區。
最終,華麗轉身為——
1個開放式餐廳+廚房+書房
1個幹、濕區分離衛生間
1個臥室+休閑區
1個衣帽間

改造後,滿足了業主想要的所有功能區,空間利用率大大提升。從原始平麵圖 ↑ 和平麵布置圖 ↓ 的對比,即可看出變化。

整個施工過程中,我們數次探訪,並邀請工程總監石寶龍老師一起前往,詳細介紹工地、升級工藝、施工流程、細節處理、好的經驗,小戶型裝修的閉坑原則,以及近期梵客家裝優惠活動,希望對準備裝修的業主朋友有所幫助。
入ru戶hu大da門men,就jiu能neng看kan出chu裝zhuang修xiu的de用yong心xin程cheng度du。從cong進jin場chang開kai始shi,業ye主zhu換huan的de新xin防fang盜dao門men就jiu要yao保bao護hu起qi來lai,防fang止zhi搬ban瓷ci磚zhuan等deng硬ying物wu時shi,磕ke碰peng到dao門men導dao致zhi掉diao漆qi。整zheng個ge裝zhuang修xiu竣jun工gong後hou,保bao護hu才cai會hui撤che場chang。
甲級防盜門,壁厚、保溫、隔音比乙級、丙級防盜門更優異。用的是C級鎖芯,上下加起來共17道鎖點。
門廳是門麵,不僅要好看,還要實用性強。小戶型更要考慮收納。門廳兩側的空位分別倚牆定製了兩組收納櫃,增加儲物功能。
↑ 直對大門的空位,設計了一個鞋帽櫃,可以滿足夫妻二人日常掛衣、換鞋需求。
↓ 門的右邊,有一個L型空間,設計了頂天立地的儲物櫃,增加收納功能。外露的強電箱影響美觀,會被包裹在儲物櫃內。
因為有貼牆的櫃子,暫時未安裝踢腳線,同時為了配合櫃子安裝,保證櫃體與牆麵緊密貼合、無縫隙,櫃子從上到下嚴絲合縫,因此此處牆麵做了垂平工藝。
↓ 門廳效果圖展示


餐廳+廚房+書房的多功能區,是整個家庭的公共區域兼活動中心。原房型為1廚+1餐廳,打通中間的牆,改為開放式大格局,視野更開闊,采光通風也更好,還有助於家庭成員之間的互動。
↑ 廚房灶台區,幹淨整潔。牆麵采用400*800的瓷磚鋪貼,時尚大氣,工藝嚴絲合縫。目前在等櫥櫃進場,陸續還會有木門、潔具、燈具等進場安裝。
關於改燃氣
很多業主會問:燃氣表在陽台,可以改嗎?
改燃氣是有要求的,要用專用燃氣防爆管引過去。所有管道要漏在明處,不能在牆體內或地下。管道包覆也要用能檢修的活板。
↓ 廚房雖小,但對生活品質的要求不能降低,安裝了淨水過濾器,可以過濾水中的泥沙、雜質、重金屬等有害物質,讓飲用水、日常用水更健康。
↓ 細節也要多注意,圓弧形的陽角,更安全,還可避免磕碰產生的缺口。
廚房、衛生間的牆磚都采用薄貼工藝。薄貼法采用“瓷磚黏結劑”,強度更高,黏結性是傳統砂漿的3-4倍,兌水即可使用,不需現場配比水泥砂漿,不需要做拉毛處理,薄貼厚度隻需3-5毫米,更安全穩固,空鼓率低,一天可鋪貼20平米,施工效率大大提高。
↓ 牆麵貼著水電標識貼,警示牆內是水電管線,避免後期安裝櫥櫃、打眼、開孔時出現安全隱患。
↓ 在工地安裝了AI監理設備,內置GPS定位,可以用手機直接觀看施工狀況,實現24小時工地可視化,即便業主不在現場,也能全方位了解自家裝修進度及狀況,並起到監督作用。
↓ 即便位於十幾層的高樓,也難以避免外界汽鳴、喇叭的幹擾。窗戶全部改為隔音窗,杜絕室外噪音,保持室內清靜,提升居住幸福感。
↓ 空間小,在燈具的選擇上也要以簡約為主。無主燈、磁吸燈設計,完全可以滿足生活照明,同時還避免了大燈帶來的壓抑感、局促感。
業主沒有太多複雜的烹飪需求,設計師設計了一個西式廚房,從灶台→吧台→書桌一氣嗬成,整體又時尚,增加了功能區,提升了空間利用率。
↓ 餐廳+廚房+書房效果圖展示





幹區,衛生間麵積較小,做了幹濕分區。將門口的空位利用起來設計洗漱台,提升空間美觀度,使用起來也更方便。
↓ 幹區效果圖展示


濕區,淋浴+馬桶。如何避免小空間的擁擠,可以選用嵌入式、懸空式,再以淺色係大牆磚、地磚延展視覺空間。
↑ 衛生間的工藝,最重要的就是防水,梵客家裝對此有非常嚴格的驗收標準:滿刷1.8米高。如果隔壁空間緊挨牆的是收納櫃,衛生間防水會刷到頂。
↓ 走線遵循橫平豎直的規範,開槽要固定好,排列整齊,確保電上水下,嚴禁水電同槽。線頭必須包頭打卷。
↓ 衛生間,牆麵選用400*800的牆磚,和400*400的地磚,這個尺寸對小戶型非常友好,可以延伸視覺空間,讓小空間看起來更大。工藝上,瓷磚、地磚鋪貼平整,幾乎“無縫銜接”,輕敲瓷磚表麵,聲音沉悶,無空鼓磚。
壁掛馬桶,下方懸空,節約空間,清潔也更方便。
↓ 壁龕,可以放洗浴用品。工藝上,碰角與圓弧形陽角的結合,視覺上更美觀,使用安全係數也更高,避免磕碰。
↓ 地麵要有坡度,門口為最高點,地漏處為最低點,水要能從門口流到下水口。高度比例是千分之三到百分之一左右。下水口為八角“回”字形,保證下水更順暢。
↓ 牆麵、dimianjierangchu,bixushiqiangzhuanyadizhuan,yeshiweilepaishuidaodilougengfangbian。fanzhi,dizhuanyaqiangzhuan,shuihenyoukenengduijizaifengxichu,huoliudaofangshuiceng,jiasuqilaohua。
↓ 濕區效果圖展示


衣帽間,老房型中,臥室空間比較大,在中間砌牆,分出1個衣帽間,多了一個功能區。衣帽間內,倚牆三麵定製衣帽櫃,大大提升儲物性能。
從cong衣yi帽mao間jian的de門men框kuang處chu,可ke以yi看kan到dao加jia強qiang防fang開kai裂lie玻bo纖xian布bu工gong藝yi,可ke有you效xiao防fang止zhi牆qiang麵mian開kai裂lie,對dui牆qiang麵mian有you加jia固gu作zuo用yong。還hai能neng覆fu蓋gai新xin老lao房fang牆qiang麵mian缺que陷xian,保bao證zheng表biao麵mian結jie構gou及ji顏yan色se均jun勻yun,不bu脫tuo落luo、不褪色色、不起翹,降噪,且保溫,防水,安全、無毒、環保。
↓ 衣帽間效果圖展示

臥室+休閑區,靠牆的一邊是床,靠窗的一邊是沙發、dianshi。zaidatongyangtaiyuwoshizhijiandegechuang,gaiweibatai,yiqiansexiweizhujitiao,xiaokongjiangengxianmingliang,shijiaotongtougangengqiang。congcanchudaowoshizaidaoyangtai,dizhuantongpu,meiyouguomenshi,yijingdaodi,kongjianchangliang。
↓ 這裏要安裝暖氣,上下提前預留了管口。
↓ 臥室做了雙眼皮吊頂,內部包裹水管,同時還起到裝飾效果。
↓ 預留的線頭卷成彈簧狀藏於底盒,加保護蓋。
↓ 臥室+休閑區效果圖展示



陽台采光非常好,改造後,不再是一個單純的晾衣服的地方,可以在這看書、喝咖啡、辦公,大大提高利用率,更具生活氣息。
↓ 這個暗槽裏是一個窗簾盒,可以將窗簾頂部隱藏進去,拉動窗簾也更加流暢。
↑ huangseweiqianggu,yeshijiemianji。qiangmianshigongqian,weibaozhengyuanshijicengwengu,zengqiangjicengdefuzheli,xuyaotushuajiemianji。tongshi,yeyicitianpingqiangmianliewenfengxi,zaiqiangmianxingchengyizhongbaohumo,fangzhiqiangmianqisha、起皮、開裂、脫落、掉灰,避免以後出現質量問題,在一定程度上還可起到防潮、防黴的作用。
↓ 老房子臥室和陽台之間都有一個門窗設計,打掉窗戶,將這裏改為吧台,可以放一些隨手物品,或在這裏辦公,都非常方便。
↓ 陽台效果圖展示

再雞肋的結構,在設計師的妙手改造下,也能華麗轉身。小戶型精致、緊湊、好hao打da理li,同tong樣yang也ye能neng體ti現xian居ju家jia溫wen馨xin感gan。如ru果guo你ni家jia也ye是shi類lei似si戶hu型xing,你ni也ye喜xi歡huan這zhe種zhong風feng格ge,報bao名ming預yu約yue設she計ji師shi,定ding製zhi裝zhuang修xiu方fang案an,為wei自zi己ji打da造zao一yi個ge舒shu適shi家jia。

-end-
聲明:本文由梵客家裝提供,轉載請聲明出處!
讓家一大再大的體驗
已有 86 位業主獲得服務
新用戶專享優惠