您當前的位置:
來源:梵客家裝 關鍵詞:現代簡約,梵客家裝 1059 2021-10-12
小區名稱:上莊馨瑞嘉園
裝修風格:現代簡約
裝修類型:全包
房屋類型:新房裝修
房屋戶型:1室2廳1廚1衛
建築麵積:74平米
部分材料信息:
地板:愛格,盧森,德爾,聖象,生活家等
地磚:馬可波羅,歐神諾,依諾,冠珠,陶一郎,大羅馬,鳳凰世家等
牆漆:美國大師,美國加州
吊頂:歐派,歐斯寶等
開關:西門子
櫥櫃:澳比德,誌邦,銳意空間,百世等
1
案例分析
設計理念
此案例給人的第一感覺是低調奢華,但又不失溫馨。除此之外,整個空間設計了很多儲物功能,最大化的滿足了客戶更衣、儲物的需要。
最人性化的幾處設計
進門有大的衣帽儲物櫃,衛生間有幹濕分離。
業主最滿意的地方
業主最滿意的地方就是有了次臥、客餐廳等。所有功能都齊全,沒有浪費任何一個空間,最大化的合理利用了空間。

客廳的原木色地板,淺咖色亮麵沙發,和深色窗簾形成鮮明對比,整個空間運用咖色、淺灰色和黑色,盡顯低調奢華。

餐廳的一整麵牆運用裝飾畫來裝點,特別選擇黑框設計,和整個客廳統一。

主(zhu)臥(wo)延(yan)續(xu)了(le)客(ke)廳(ting)低(di)調(tiao)奢(she)華(hua)的(de)風(feng)格(ge),窗(chuang)簾(lian)依(yi)舊(jiu)采(cai)用(yong)深(shen)咖(ka)啡(fei)色(se),床(chuang)頭(tou)靠(kao)枕(zhen)及(ji)床(chuang)品(pin)分(fen)層(ceng)次(ci)運(yun)用(yong)深(shen)淺(qian)咖(ka)啡(fei)色(se),床(chuang)麵(mian)也(ye)采(cai)用(yong)真(zhen)絲(si)的(de)光(guang)滑(hua)麵(mian)料(liao),在(zai)質(zhi)感(gan)上(shang)和(he)客(ke)廳(ting)形(xing)成(cheng)統(tong)一(yi)整(zheng)體(ti),低(di)調(tiao)奢(she)華(hua)有(you)韻(yun)味(wei)。
2
房型改造
原戶型是一個大1居,但是客戶需求是2ju,youlaorenguolaidaihaizi,suoyibaketingdeyibufenyongzaiyangtai,jieheyangtaidemianjizuoleyigeciwo,menshituilamen,jiyouwoshidekongjianyoubuyingxiangketingdecaiguang。ciwozuochengtatami,jiyouyiguiyoukeyichuwu。yuanyangtaishiliangshaiqu,chufangyangtaianleyigezhediemen,baliangshaiqugaidaochufangyangtai。
2處改造:
陽台改為次臥
門口增加衣帽間
改造一
借客廳麵積給陽台,陽台變身次臥,同時也是休閑室,多了一個功能區。次臥收納空間強大,集美觀與實用於一體。

原房型中,客廳連接一個陽台,廚房連接一個陽台,客廳麵積大,即便將客廳陽台改造,依然能保證整套房子有一個陽台使用。

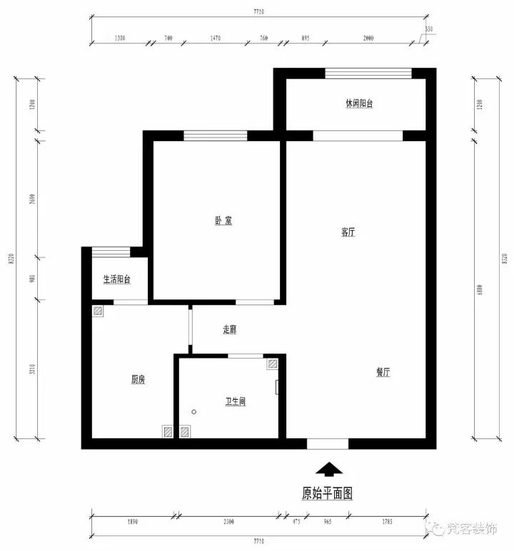
通過對比原始平麵圖和平麵布置圖,可以看出,原房型為1室2廳1廚1衛,經改造後,變為2室2廳1廚1衛,多了一個次臥。

局部對比,改造前
原房型中,休閑陽台麵積很小,完全不夠打造一個休閑空間或者次臥。

局部對比,改造後
將休閑陽台改為次臥,原陽台麵積較小,借用客廳的麵積,打造了一個完整的大空間。劃重點:
借用客廳空間,陽台門移位
利用分割陽台和客廳的牆體打造收納空間
改造後的空間既是次臥,也是休閑室
榻榻米既可以休息,也是收納空間
實景圖

完全看不出陽台的痕跡,就像一個獨立的休閑室,可以在這裏品茶、看書、曬太陽。玻璃移門既節約空間,還能借次臥的陽光給客廳。
改造二
利用入室處和衛生間之間的空間,打造了一個衣帽間,多了一個功能區。
局部對比,改造前

原房型中,餐廳和衛生間之間有足夠的空間可以利用。
局部對比,改造後

利用這個空間打造一個衣帽間,多了一個收納空間。劃重點:
自建牆體,保證衣帽間的完整性
實景圖

衣帽間就在入室處,為上下結構,櫃子中間和下方都有燈光,方便晚上回家時照明。中間可以放臨出門要用的包、鑰匙等,下麵可以放隨時換的鞋。
3
關於軟裝搭配,梵客家裝設計師王潮元建議
統一
如果想要方便簡單一些,可選擇成套定製,但價格會相對會貴一些。如果考慮自己裝飾,可選擇顏色、樣式、格調相對一致的飾品,一樣能營造出定製大氣的感覺。
適中
居室布置過於穩定,會有些壓抑,過輕又顯得輕浮。軟裝搭配要注重色彩的結合,以及家具等形狀大小的分配等。例如:黃色的地板、綠植及淺灰,灰色穩重高雅,黃色衝淡灰的沉悶,綠色也避免了黃色過於耀眼。
對比
居室冷暖色彩的對比,軟裝質地的對比,風格的對比等,讓室內顯得更多樣式,也展示了不同節奏的生活方式。
主次
本(ben)案(an)主(zhu)要(yao)基(ji)調(tiao)是(shi)黑(hei)灰(hui)咖(ka)色(se)等(deng)高(gao)級(ji)灰(hui)的(de)顏(yan)色(se),本(ben)身(shen)就(jiu)很(hen)低(di)調(tiao)奢(she)華(hua),以(yi)灰(hui)色(se)為(wei)主(zhu)色(se)調(tiao),黑(hei)色(se)小(xiao)麵(mian)積(ji)點(dian)綴(zhui),咖(ka)啡(fei)色(se)做(zuo)一(yi)個(ge)暖(nuan)色(se)的(de)調(tiao)節(jie),空(kong)間(jian)不(bu)單(dan)調(tiao)沉(chen)悶(men),同(tong)時(shi)增(zeng)加(jia)了(le)暖(nuan)色(se)係(xi),不(bu)那(na)麼(me)冷(leng)。光(guang)麵(mian)絲(si)綢(chou)類(lei)布(bu)藝(yi)沙(sha)發(fa)更(geng)有(you)感(gan)覺(jiao),搭(da)配(pei)粗(cu)質(zhi)地(di)毯(tan),材(cai)質(zhi)上(shang)的(de)對(dui)比(bi)更(geng)豐(feng)富(fu)了(le)空(kong)間(jian)的(de)層(ceng)次(ci)感(gan)。
本案設計師:王潮元
國家一級設計師
國家注冊設計師
建築協會委員
梵客家裝首席設計師

現代簡約中的
低調奢華
一起來欣賞其他經典案例
通過梵客設計師王潮元的講解,我們可以看到現代簡約風格的家不再是冷冰冰的黑白灰,而是充滿了多元化的時尚感,既有鏡麵、金屬的冷酷,也有絲絨、奶咖的柔軟。
一起來欣賞其他經典案例:















聲明:本文由梵客家裝提供,轉載請聲明出處!
讓家一大再大的體驗
已有 86 位業主獲得服務
新用戶專享優惠