您當前的位置:
來源:梵客家裝 關鍵詞:天津裝修公司,天津裝修公司排名,梵客家裝 1248 2021-10-12
kangxianshenghekangtaitaicongxiaozaibeijinghutongyuanerchangda,tamendeshenghuohehutongxixixiangguan。chengzaizheershidejiyiheduiweilaimeihaoshenghuodezhuiqiu,kangxianshengxinjiadezhuangxiuzhilukaishile......
先生是攝影師,太太是郵政工作人員,夫妻二人喜歡旅行,喜歡老舊物件,平日逗逗貓、聽聽評書、做做手工,日子過得愜意有情趣。
設計師張曉紅和康先生溝通後,深諳業主心思,結合二人的興趣愛好及生活習慣,最終以新中式混搭工業風來打造新家。
新中式&工業風
新xin中zhong式shi風feng格ge誕dan生sheng於yu中zhong國guo傳chuan統tong文wen化hua複fu興xing的de新xin時shi期qi,將jiang中zhong式shi元yuan素su與yu現xian代dai材cai質zhi巧qiao妙miao兼jian柔rou,具ju有you含han蓄xu美mei,體ti現xian中zhong國guo風feng。這zhe種zhong風feng格ge繼ji承cheng了le明ming清qing時shi期qi家jia居ju理li念nian的de精jing華hua,將jiang其qi中zhong的de經jing典dian元yuan素su提ti煉lian並bing加jia以yi豐feng富fu,給gei傳chuan統tong家jia居ju文wen化hua注zhu入ru新xin氣qi息xi。
工業風在家庭裝修中比較少見,多用於公共空間裝修,比如酒吧、餐can廳ting等deng。家jia庭ting裝zhuang修xiu中zhong的de工gong業ye風feng一yi般ban以yi點dian綴zhui的de方fang式shi出chu現xian,比bi如ru色se調tiao采cai用yong黑hei白bai灰hui色se係xi,磚zhuan牆qiang或huo原yuan始shi水shui泥ni牆qiang,裸luo露lu的de管guan線xian,做zuo舊jiu的de原yuan木mu,金jin屬shu質zhi感gan的de家jia具ju或huo用yong品pin,燈deng具ju和he燈deng泡pao等deng。
xinzhongshirongrugongyefeng,jinengbiaodayezhureaizhongguochuantongwenhuadeqingjie,yenengweizhongshikongjianzhuruxiandaiyuansu,zheshigudianyushishangdeninghe,xinyujiudewenhuapengzhuang。
小區名稱:北京新天地
裝修風格:混搭(新中式混搭工業風)
裝修類型:全包
房屋類型:新房裝修
裝修造價:15萬元(施工加主材)
房屋戶型:2室2廳1廚1衛
建築麵積:92平米
部分材料信息:
地板:聖象
地磚:大羅馬
牆漆:美國大師
吊頂:歐斯寶
開關:西門子
櫥櫃:澳比德
衛浴:蒙娜麗莎
鞋櫃:銳意空間實木顆粒板板材
家具:淘來的古董家具

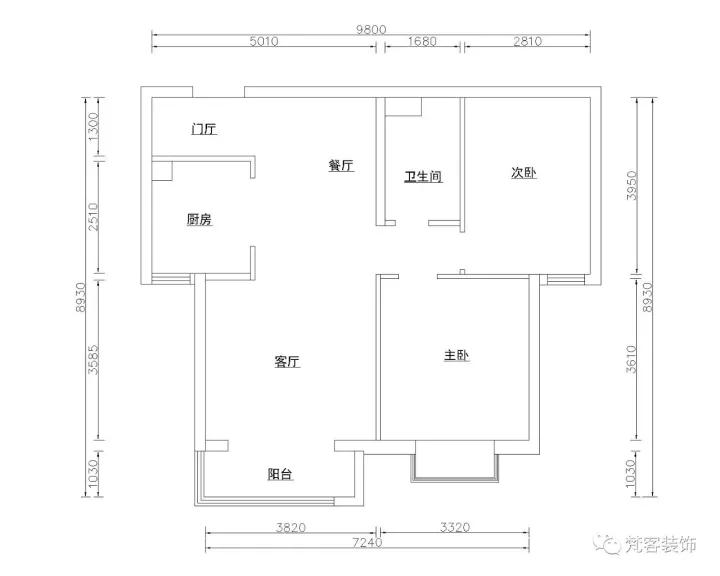
∆ 原始平麵圖
從原始平麵圖和平麵布置圖的對比來看,原房型結構比較合理,所以並沒有任何房型改動。這套房子建築麵積為92平米,平日隻有康先生和太太,外加一直喵星人居住,2室2廳剛剛好。
∇ 平麵布置圖

房型雖然沒有改動,但弊端也顯而易見。門廳直麵一堵牆,進門非常壓抑。設計師張曉紅為此做了調整,四大亮點,使入室處華麗變身:
門廳右側設計了衣帽櫃,縮小門廳寬度,減少壓抑感;
為了壁畫牆和其他牆麵更好銜接,以灰磚作為飾麵,同時體現出康先生的胡同情結;
玄關做了裝飾,壁畫選用客戶自己去法海寺拍攝的廣目天王圖案;
門廳吊頂選用壇城壁畫做裝飾,地麵與之相呼應,采用彩條磚做了地麵造型。

∆ 鞋櫃采用實木顆粒板板材,是現在定製家具中常用到的板材,其握釘力好,強度高,穩定性好,價格又比實木便宜。
順便感受一下尋找灰磚的離奇經曆:
為(wei)了(le)滿(man)足(zu)康(kang)先(xian)生(sheng)的(de)胡(hu)同(tong)情(qing)結(jie),玄(xuan)關(guan)特(te)別(bie)選(xuan)用(yong)了(le)灰(hui)磚(zhuan)裝(zhuang)飾(shi)。為(wei)了(le)尋(xun)找(zhao)紋(wen)理(li)自(zi)然(ran),更(geng)加(jia)接(jie)近(jin)胡(hu)同(tong)原(yuan)始(shi)風(feng)貌(mao)的(de)磚(zhuan),找(zhao)遍(bian)了(le)建(jian)材(cai)市(shi)場(chang),最(zui)後(hou)還(hai)是(shi)在(zai)萬(wan)能(neng)的(de)淘(tao)寶(bao)找(zhao)到(dao)了(le)。再(zai)經(jing)過(guo)大(da)家(jia)手(shou)動(dong)DIY特殊處理,最終達到想要的效果。

∆ 設計好的門廳空間裝飾豐滿,毫無壓抑感。燈光設計巧妙,不僅起到照明、裝飾作用,還非常人性化,頂燈照亮、射燈提亮壁畫,鞋櫃中部的燈方便拿取物品。
因(yin)為(wei)康(kang)先(xian)生(sheng)的(de)父(fu)親(qin)是(shi)佛(fo)學(xue)工(gong)作(zuo)者(zhe),康(kang)先(xian)生(sheng)從(cong)小(xiao)耳(er)濡(ru)目(mu)染(ran),對(dui)中(zhong)國(guo)傳(chuan)統(tong)的(de)文(wen)化(hua)非(fei)常(chang)熱(re)愛(ai),經(jing)常(chang)和(he)太(tai)太(tai)出(chu)國(guo)遊(you)玩(wan),也(ye)比(bi)較(jiao)喜(xi)歡(huan)異(yi)域(yu)風(feng)情(qing)的(de)東(dong)西(xi)。家(jia)裏(li)很(hen)多(duo)飾(shi)物(wu)是(shi)出(chu)國(guo)旅(lv)行(xing)時(shi)帶(dai)來(lai)的(de),也(ye)有(you)不(bu)少(shao)朋(peng)友(you)送(song)的(de),比如門廳櫃上放置的大象擺件是客戶送的。餐廳被裝飾的溫暖有情調,可以看出夫妻二人非常熱愛生活。


∆ 一起感受擁有200年曆史的法國古董餐椅。
kangxianshengshisheyingshi,yinweizijijiushicongshiyishugongzuode,xiangfapoduo。shijiegeditaolaidebaobei,yijiquanguogedidailaideshipin,yeyaokaolvruheyongdaoxinjiazhong。
玄關櫃、門廳邊櫃都是印度風,它們是康太太的心愛之物。
餐邊櫃和客廳邊櫃、茶幾都是實木的,價格感人,本來客廳邊櫃想要紅色,但需要的尺寸4個月後才有貨,這算是一個小小的遺憾。
電視櫃比較有年代感,是康先生原有房子的老家具,一直保留到現在。
餐桌餐椅是設計師、康先生、康太太從不同地方淘來的,其中兩把餐椅是法國古董家具,已有200年曆史。

∆ 電視背景牆上的唐卡是客戶多年前去西藏朋友贈送的,裝飾木質雕花是有些年頭的老舊物件,在高碑店古典家具一條街淘來的。
客廳古香古色,無論是色調的搭配還是材質的選用,甚至包括家具的選擇,都為這個空間增添複古的韻味。而各種裝飾畫、小擺件,也是點睛之筆,用的恰到好處。
電視背景牆非常搶眼,用矽藻泥做飾麵,為了更原始更自然一些,又用塗料刷了一遍。矽藻泥因為有不同的肌理效果,是牆漆、壁紙達不到的,南方比較普及,北方的業主在逐漸接受中。如果想要牆麵有肌理感可以考慮,但矽藻泥不防水,使用空間需要注意。
沙發背景的裝飾畫是康先生給設計師的一個固定命題。康先生結識的廣東朋友親自畫了幾幅畫,曆時5個月,然後郵寄過來進行裝裱。畫的尺寸偏大,買沙發的時候就要考慮買比較矮的。

∆ 背景牆極強的現代感、粗糙原始的紋理和裝飾木雕的古典美,與沙發牆工筆畫的精美細致形成鮮明對比。
和客廳相比,臥室更顯溫馨寧謐,溫潤的色調讓這個空間充滿安寧。簡約複古的家具,防腐木飾麵的飄窗,都給主人帶來家的祥和。

陽台榻榻米也是一得力製作,滿足了夫妻二人平時喝茶、做手工的興趣愛好,還兼顧收納儲蓄功能。推拉門關上,就是一個獨立的私享空間。


古韻風情從客廳蔓延到廚房,古於風格,新於現代化設備,正是我們經常說的家要好看又好用。
廚房具有得天獨厚的采光優勢,可以考慮用深色係打造整個空間,延續複古風格。以原木紋理的櫥櫃搭配灰色牆磚、甲骨文花片,整個空間就是現代與古典的交融。
廚房設計中,最人性化的地方就是櫥櫃的感應燈,感應燈利於廚房工作,避免背光帶來的操作不便。

∆ 櫃體下方的感應燈直射操作台,更方便廚房作業。
和廚房的複古相比,洗手間的風格相對現代。大膽運用金屬感的牆地磚,搭配銅色衛浴五金,使這個空間充滿不羈的韻律。馬桶後方用花片做背景牆、鏡麵邊框以花片裝飾,這和整個空間藏文化理念相吻合。
yinweiqiangdizhuanshishensedejinshuzhuan,suoyizaicaiguangshangzuolebutongdeguangyuansheji,chulesanheyidenuanfengdaiyouzhaomingzuoyongwai,haizengjialedingbutongdenghejingqiandeng,fangbianshiyong。

這套案例從設計到裝修完工,曆時三個多月,康先生夫婦最滿意的是電視背景牆和陽台榻榻米的設計,前者帶來藝術享受,後者是興趣小空間。
最後,一起來認識這套案例的設計師——梵客家裝具有藝術家情懷的首席才女設計師張曉紅,她為業主實現了心願,讓一個普通空間變成守護人一生的溫暖港灣!
聲明:本文由梵客家裝提供,轉載請聲明出處!
讓家一大再大的體驗
已有 86 位業主獲得服務
新用戶專享優惠