服務流程
  • 網頁預約

    免費量尺

  • 上門量房

    設計方案

  • 到門店看方案

    簽訂合同

  • 準備材料

    進場施工

預約免費量房

您當前的位置:

設計師圖片

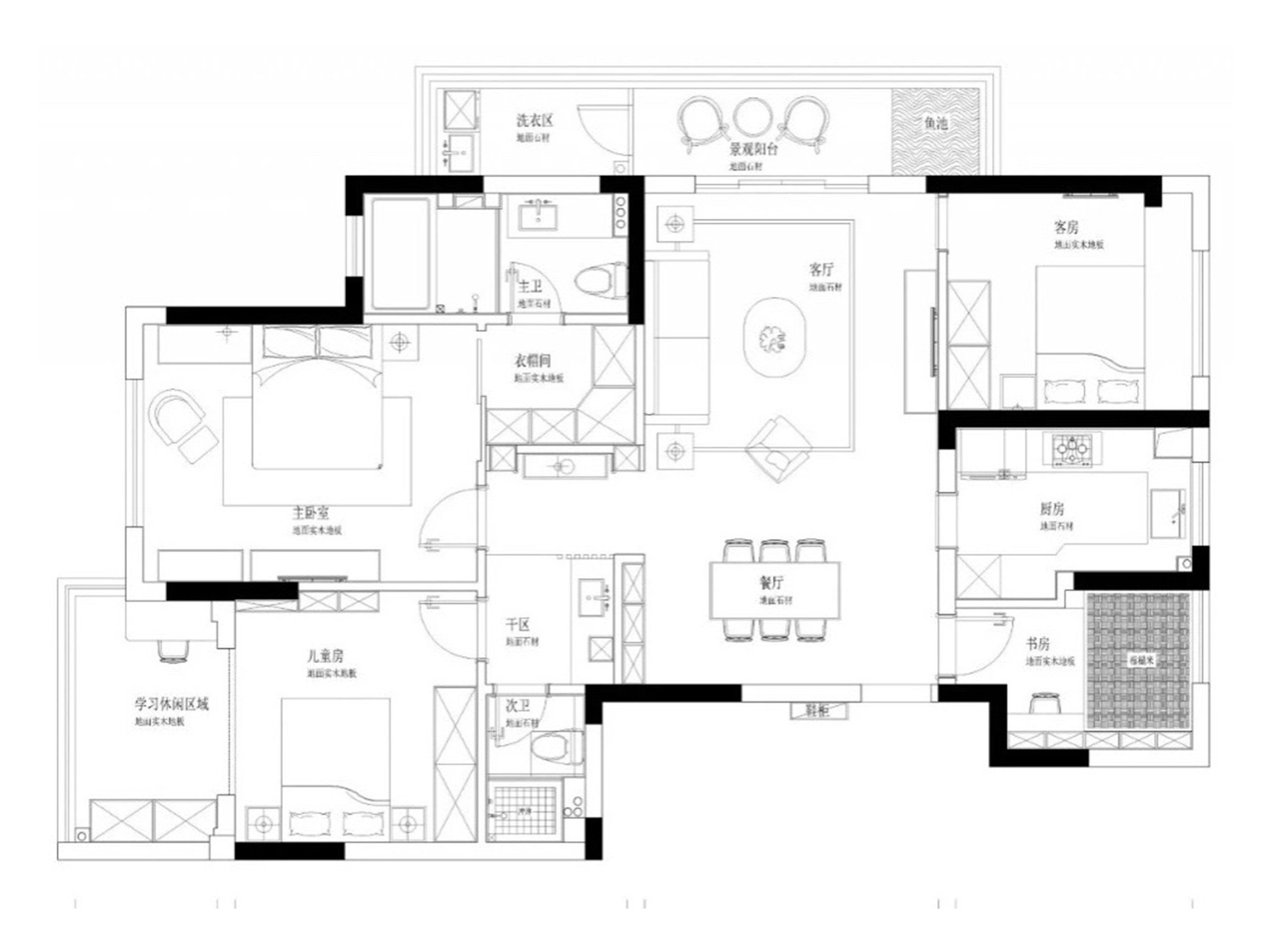
望京西園

王景肖設計師

戶型: 三居

風格: 現代簡約

麵積: 150.0㎡

介紹:

客(ke)戶(hu)為(wei)單(dan)身(shen)男(nan)士(shi),整(zheng)體(ti)灰(hui)度(du)色(se)調(tiao)彰(zhang)顯(xian)男(nan)性(xing)主(zhu)義(yi),整(zheng)體(ti)效(xiao)果(guo)再(zai)簡(jian)約(yue)的(de)基(ji)礎(chu)上(shang)增(zeng)加(jia)線(xian)條(tiao)感(gan),拉(la)伸(shen)空(kong)間(jian),使(shi)整(zheng)個(ge)空(kong)間(jian)感(gan)與(yu)使(shi)用(yong)上(shang)更(geng)加(jia)合(he)理(li)通(tong)透(tou)。

算算這樣裝修需要多少錢?

有參考,花錢更有譜

立即計算

01

02

03

04

05

新用戶專享優惠

立即兌換