服務流程
  • 網頁預約

    免費量尺

  • 上門量房

    設計方案

  • 到門店看方案

    簽訂合同

  • 準備材料

    進場施工

預約免費量房

您當前的位置:

設計師圖片

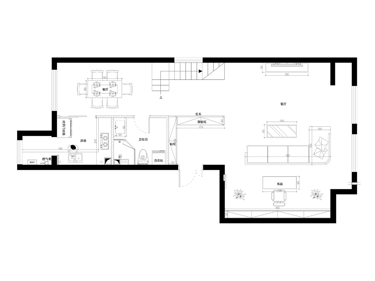
順義蘇活

孫鑫設計師

戶型: 複式

風格: 現代簡約

麵積: 185.0㎡

介紹:

此(ci)戶(hu)型(xing)采(cai)用(yong)簡(jian)約(yue)的(de)現(xian)代(dai)設(she)計(ji)風(feng)格(ge),因(yin)為(wei)原(yuan)戶(hu)型(xing)除(chu)了(le)外(wai)牆(qiang)沒(mei)有(you)格(ge)局(ju)布(bu)置(zhi),布(bu)局(ju)需(xu)要(yao)全(quan)部(bu)重(zhong)新(xin)設(she)計(ji),在(zai)結(jie)構(gou)上(shang)進(jin)行(xing)改(gai)動(dong),加(jia)建(jian)二(er)層(ceng)打(da)造(zao)複(fu)式(shi)結(jie)構(gou)。後(hou)期(qi)在(zai)家(jia)具(ju)、配飾上做了精心的布置。客廳地麵選用米黃色淺色玻化磚,讓居室現得幹淨利落。牆麵用筒燈的燈光渲染,給人一種朦朧的意境美。尤其是電視背景牆和掛畫,體現了現代低調的風格。整體風格莊重而不失溫馨。

算算這樣裝修需要多少錢?

有參考,花錢更有譜

立即計算

01

02

03

04

新用戶專享優惠

立即兌換