網頁預約
免費量尺
上門量房
設計方案
到門店看方案
簽訂合同
準備材料
進場施工
您當前的位置:
孫鑫設計師
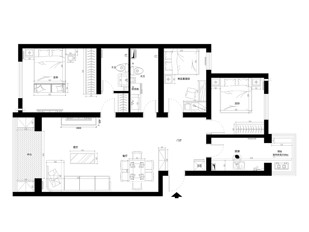
戶型: 三居
風格: 現代簡約
麵積: 126.0㎡
介紹:
本(ben)設(she)計(ji)作(zuo)品(pin)為(wei)現(xian)代(dai)簡(jian)約(yue)風(feng)格(ge),簡(jian)潔(jie)明(ming)快(kuai)大(da)氣(qi),客(ke)廳(ting)沙(sha)發(fa)牆(qiang)造(zao)型(xing)是(shi)時(shi)尚(shang)壁(bi)紙(zhi)裝(zhuang)飾(shi),掛(gua)畫(hua)配(pei)飾(shi)及(ji)為(wei)簡(jian)潔(jie),然(ran)而(er)體(ti)現(xian)脫(tuo)俗(su)。吊(diao)頂(ding)簡(jian)潔(jie)大(da)氣(qi),時(shi)尚(shang)的(de)家(jia)具(ju)搭(da)配(pei)把(ba)現(xian)代(dai)風(feng)格(ge)體(ti)現(xian)非(fei)常(chang)完(wan)美(mei),給(gei)人(ren)感(gan)覺(jiao)空(kong)間(jian)合(he)理(li)統(tong)一(yi)。
算算這樣裝修需要多少錢?
有參考,花錢更有譜
新用戶專享優惠