網頁預約
免費量尺
上門量房
設計方案
到門店看方案
簽訂合同
準備材料
進場施工
您當前的位置:
劉春暉設計師
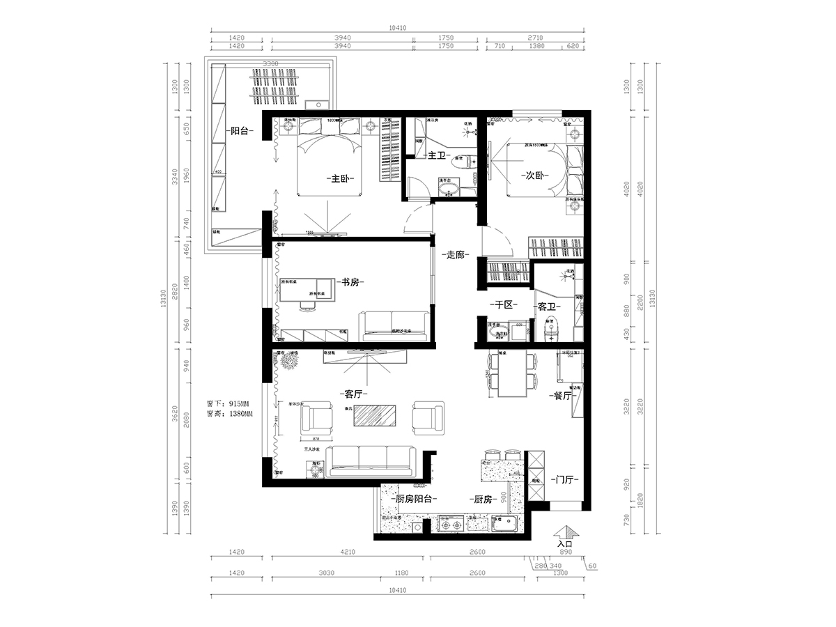
戶型: 三居
風格: 現代簡約
麵積: 130.0㎡
介紹:
北歐風情在生活節奏迅猛的當代,蘊含千姿百態的生活樂趣,在整體設計中體現了不一樣風情。 客ke廳ting白bai色se的de文wen化hua石shi電dian視shi背bei景jing牆qiang凹ao凸tu感gan強qiang,簡jian潔jie明ming快kuai。簡jian潔jie線xian條tiao的de電dian視shi櫃gui,吊diao燈deng,線xian條tiao明ming朗lang的de沙sha發fa和he配pei飾shi,它ta所suo呈cheng現xian出chu來lai的de是shi非fei常chang接jie近jin自zi然ran的de原yuan生sheng態tai的de美mei感gan。 餐can廳ting左zuo側ce的de照zhao片pian牆qiang是shi,主zhu人ren可ke以yi把ba喜xi歡huan的de照zhao片pian掛gua在zai牆qiang上shang。邊bian櫃gui加jia上shang黃huang色se的de裝zhuang飾shi畫hua牆qiang麵mian是shi整zheng個ge空kong間jian充chong滿man了le溫wen馨xin的de感gan覺jiao。開kai敞chang式shi的de廚chu房fang更geng是shi將jiang采cai光guang照zhao入ru用yong餐can區qu。 開放式廚房,強調室內空間寬敞、內外通透,最大限度引入自然光,吧台將用餐和備餐的樂趣合二為一,享受生活的點滴之美。 書房空間,更是將北歐與中國的水墨配飾畫品融入其中,文雅的書香氣迎麵而來。
算算這樣裝修需要多少錢?
有參考,花錢更有譜
新用戶專享優惠